|
Топ 10 компаній
Вся стрічкаІнфоцентр
19.12.25
Графік роботи компанії Роліс у свята.
Повідомляємо про зміни в графіку роботи компанії Роліс в грудні 2025 та січні 2026 рр.
02.12.25
Святковий графік роботи компанії Декосан
Наближаються свята, тож публікуємо графік роботи Декосану на грудень
15.05.25
Компанія Венеція з міста Одеса зачиняється!
та проводить розпродаж комплектуючих для жалюзі та ролет
18.04.25
З прийдешніми Великодніми святами!
|
Назад до спискуКорисні статті для бізнесу
Рафштори (зовнішні жалюзі) - що потрібно знати про них
Наружные жалюзи являются солнцезащитным элементом, устанавливаемом на фасаде здания и состоящим из отдельных ламелей, соединенных, так называемой, «лесенкой». Движение ламелей осуществляется в направляющих шинах или с помощью направляющих тросиков, обеспечивающих направление движения. При необходимости, ламели можно спрятать в короб, расположенный над оконным проемом. Кроме своей основной функции – защиты от солнечного излучения (предохранение интерьера от перегревания, пассивное охлаждение, отражение солнечных лучей, регулировка интенсивности освещения), рафшторы выполняют также функции защиты приватности жилья, элиминирования наружного шума, снижения потери тепла через окно. Кроме того, они являются немаловажным архитектурным элементом. Наружные жалюзи рекомендуются для широкого применения в семейных коттеджах, административных зданиях и производственных цехах. Преимуществом наружных жалюзи является возможность плавного наклона ламелей, благодаря этому можно регулировать интенсивность освещения интерьера. 1.1) Технические параметры У новостроек наружные жалюзи заранее включаются в строительный проект и устанавливаются в фасад здания, при этом в фасад можно также установить направляющие шины. Наружные жалюзи можно устанавливать на готовые постройки дополнительно. В этом случае, однако, будет виден металлический короб, в котором размещаются поднятые жалюзи. Ламели жалюзи могут иметь различную форму (C, S, Z) и ширину, причем форма ламелей может иметь влияние как на эстетическое восприятие жалюзи (узкие ламели придают элегантность), так и на их функциональность. Общепринятое правило гласит: чем больше изгиб ламелей, тем лучше их затеняющие и изоляционные свойства, т.к. плотный контакт ламелей предохраняет от проникновения света и воздуха (а также холода и тепла).
Чаще всего конечного потребителя больше всего интересует материал, из которого изготовлены ламели. Однако, клиенту полезно знать и физические свойства материала, из которого изготовлены остальные компоненты. В качестве примера, приводим материал рафшторы с направляющими шинами и коробом, с Z – ламелями и ручным управлением.
1.3) Управление жалюзи Управление рафштор осуществляется с помощью шнура, ручки или мотора, причем моторное управление выполняется с помощью кнопки, дистанционного драйвера или автоматики. С учетом относительной массивности конструкции наружных жалюзи, для их управления особенно рекомендуется моторное управление, позволяющее в полной мере и с максимальным комфортом использовать все их функции. Управление жалюзи можно осуществлять центрально или по группам (например, по фасаду), а также с применением автоматики – в зависимости от времени суток, интенсивности солнечного освещения (датчик солнечной активности), силы ветровой нагрузки (датчик ветра) и т.д. Таким образом, автоматизированное управление обеспечивает бережливое и экономное эксплуатирование жалюзи. При выборе моторного управления необходимо предварительно ознакомиться с параметрами выбранных приводов и обеспечить строительно-техническую подготовку монтажа. Эту информацию вам могут предоставить непосредственно поставщики данной продукции при проектировании строительства. 1.4) Действующие стандарты для наружных жалюзи Основополагающим стандартом для наружных жалюзи является стандарт ?SN EN 13659 + A1. Изделие сопровождается декларацией ES о соответствии и маркируется знаком CE. В случае необходимости, подробный текст стандарта производитель может предоставить дополнительно по требованию заказчика. 1.5) Свойства изделия, не указанные в стандарте
Существенными для заказчика являются также свойства изделия, не указанные в стандарте, которые, однако, могут иметь влияние на функциональность изделия, контроль над его производством, обоснование рекламации. Данные свойства, не указанные в стандарте, сформулированы по взаимной договоренности большинства производителей солнцезащитной техники Чешской Республики.
Визуальная проверка закрытия жалюзи: Перпендикулярно к плоскости жалюзи просвета не наблюдается.
Прямолинейное движение
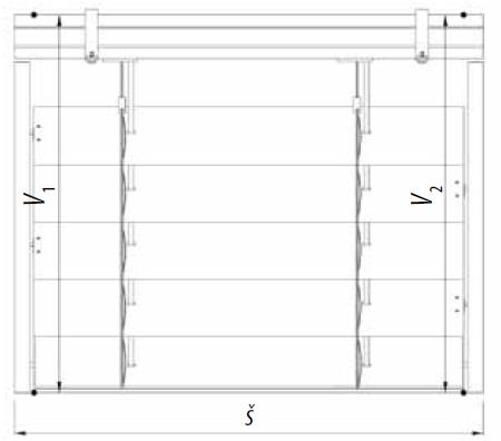
Допуск ро (в любой позиции опущенных жалюзи); ->ширина > 1 000 мм, далее
V = |V1 – V2| ≤ 1 % Ш
Допуск высоты пакета жалюзи
Допуск перекручивания
Ламели также могут иметь эффект продольного и поперечного изгиба.
Свойства наружных жалюзи, которые существенным способом влияют на энергопотребление и энергосбережение здания, зависят от коэффициента редукции Fc – см. стандарт, указанный в норме DIN 4108.
Наружные жалюзи относятся к наиболее эффективным изделиям солнцезащитной техники, позволяющим достичь максимального энергосбережения здания в течение всего года. Их преимуществом является возможность наклона ламелей для регулирования интенсивности освещения в интерьере. Для наружных жалюзи рекомендуется автоматизированное управление, т.к. возможно также подключение к иным автоматическим системам управления (освещение, датчики, управление входными воротами и т.д.). Рафшторы являются составным компонентом фасада здания, поэтому при проектировании строительства необходимо внести их в проект и обеспечить соответствующую подготовку для установки. Наряду с рольставнями, наружные жалюзи выполняют защитную функцию и, благодаря массивной конструкции и примененным материалам, предохраняют жилье от насильственного проникновения, что подтверждает статистика полиции. Наружные жалюзи имеют более длительный срок эксплуатации, по сравнению с интерьерными жалюзи. Для заказчиков подготовлена широкая цветовая палитра ламелей с высокой цветостойкостью. По специальному заказу можно изготовить жалюзи нестандартной окраски, с рекламным принтом и т.д. На жалюзи можно дополнительно установить дистанционное управление, что, однако, требует технически сложную реализацию. 1.8) Уход Наружные жалюзи практически не требуют особого ухода. При обычном загрязнении они самоочищаются атмосферными осадками. Более сильное загрязнение можно вычистить с применением моющих средств. Для очистки жалюзи, высоко расположенных на фасаде здания, рекомендуем обратиться к специализированным фирмам. Шнур и лесенка наружных жалюзи изготовлены из полиэфирных материалов, устойчивы к неблагоприятным атмосферным условиям и ультрафиолетовому излучению.
Материал предоставлен компанией Изотра |
Корисна інформація
Останнє на форумі
|
||||||||||||||||||||||||||||||||||||||||||||||||||||||||||||||||||||||||||||||||||||||||||||||||||||||
